| Prijs | € 595.000,- k.k. |
| Type object | Woonhuis, eengezinswoning, vrijstaande woning |
| Perceeloppervlakte | 710 m² |
| Woonoppervlakte | 135 m² |
| Aanvaarding | In overleg |
| Status | Verkocht onder voorbehoud |
Té leuk is deze sfeervolle en prachtige vrijstaande woning, gelegen op een perceel van 710 m² eigen grond. Deze keurig afgewerkte woning is zonder werkzaamheden te betrekken, intern is alles gloedje nieuw en zelfs nog nooit gebruikt! Op de begane grond bevindt zich een slaapkamer met badkamer ensuite waardoor de woning voor zowel jong en oud geschikt is. Op de verdieping bevinden zich 3 slaapkamers waarvan één van de kamers is voorzien van een wasmachine- en droger aansluiting en waar ook de warmtepomp staat opgesteld. De woonkamer en keuken zijn voorzien van een mooie pvc visgraatvloer met vloerverwarming. In de hal liggen nog de authentieke vloertegels. Oude details gecombineerd met nieuw is iets wat door heel de woning smaakvol is gecombineerd. Op de verdieping bevindt zich een tweede badkamer, handig voor logés of de kinderen. De woning is nagenoeg geheel geïsoleerd, voorzien van vloerverwarming, luxe warmtepompinstallatie met hybride radiatoren. Hierdoor beschikt de woning over een energielabel A+ Dan is er nog de grote garage/loods van bijna 50 m² wat de droom is van menig man! Hier kan natuurlijk volop geklust worden of het kan dienst doen als hobbyruimte, sportruimte of een combinatie hiervan. De garage/schuur is voorzien van een nieuw geïsoleerd dak en nieuwe geïsoleerde zijgevels. Heinkenszand biedt een hoog voorzieningenniveau zo zijn er diverse restaurants, supermarkten, snackbar, basisscholen, huisarts met apotheek, voetbal- en tennisvereniging, winkeltjes, een zwembad etc
sfeervolle hal/entree met authentieke vloertegels, een glas-in-lood ramenpartij, nieuwe meterkast voorzien van 12 groepen, 3 aardlekschakelaars en een 3-fasengroep. Strakke toiletruimte met aardekleuren en een fonteintje. De ruime woonkamer (35 m²) met vloerverwarming is voorzien van een visgraat pvc vloer, erker, schouw (met mogelijkheid voor een open haard), openslaande tuindeuren naar de tuin en een strakke moderne luxe keuken (8 m²) voorzien van diverse inbouwapparatuur. De keuken is uitgevoerd in een mooi neutrale zandachtigekleur voorzien van praktische lades, een besteklade, onder- en bovenkasten, een carrouselkast en een granieten aanrechtblad. Er is diverse inbouwapparatuur aanwezig zoals een koel-/vriescombinatie, combimagnetron, vaatwasser, inductiekookplaat en een afzuigkap. De slaapkamer met badkamer en suite is een plaatje om te zien! De badkamer is voorzien van vloerverwarming. Er zijn twee wastafels aanwezig met een praktisch 2 persoons badmeubel en een ruime inloopdouche met regendouche. De slaapkamer is keurig afgewerkt met een pvc vloer.
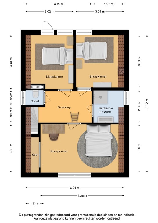
overloop met houten vloerdelen en sfeervolle toiletruimte. Tweede badkamer voorzien van elektrische vloerverwarming, luxe inloopdouche met hand- en regendouche en een wastafel met meubel. 3 Slaapkamers (ca. 16 m², ca. 10 m² en ca. 11 m²) waarvan de kamer aan de voorzijde is voorzien van vaste kastruimte en houten vloerdelen en één kamer is voorzien van een pvc vloer met wasmachine- en drogeraansluiting en opstelling van de warmtepomp. Deze laatste kamer zou dienst kunnen doen als logeerkamer, kantoor en-/of kledingkamer. Vanuit deze kamer is er ook toegang tot het platte dak.
middels een (authentieke look) losse trap zijn twee open bergzolders te bereiken.
Aan de voor- en achterzijde en zijkant van de woning is de woning omgeven door tuin, welke momenteel is ingericht met gras en een aantal bomen en planten. Aan de voorzijde is een oprit voor twee auto’s. De schuur/garage is ruim te noemen (ca. 48 m²), voorzien van dak- en muurisolatie, nieuw dak, strakke muren, betonvloer, elektra- en wateraansluiting (1 groep + 1 aardlekschakelaar).
• Rondom voorzien van nieuwe hardhouten kozijnen met HR ++ glas. • De combiwarmtepomp (Remeha Eria Tower Ace 8MR) is ook te gebruiken om te koelen en draagt tevens zorg voor het warme water in de woning. De hybride radiatoren in de woning zorgen dus voor verwarming in de winter en voor verkoeling in de zomermaanden.
| Referentienummer | 05372 |
| Vraagprijs | € 595.000,- k.k. |
| Status | Verkocht onder voorbehoud |
| Aanvaarding | In overleg |
| Aangeboden sinds | Dinsdag 13 januari 2026 |
| Laatste wijziging | Donderdag 26 februari 2026 |
| Type object | Woonhuis, eengezinswoning, vrijstaande woning |
| Soort bouw | Bestaande bouw |
| Toegankelijkheid | Senioren |
| Bouwperiode | 1935 |
| Dakbedekking | Dakpannen |
| Type dak | Mansardedak |
| Isolatievormen | Dakisolatie Grotendeels dubbel glas HR-glas Muurisolatie Spouwmuren Vloerisolatie |
| Perceeloppervlakte | 710 m² |
| Woonoppervlakte | 135 m² |
| Inhoud | 516 m³ |
| Oppervlakte overige inpandige ruimten | 6 m² |
| Oppervlakte externe bergruimte | 48 m² |
| Aantal bouwlagen | 3 |
| Aantal kamers | 5 (waarvan 4 slaapkamers) |
| Aantal badkamers | 2 (en 2 aparte toiletten) |
| Type | Achtertuin |
| Hoofdtuin | Ja |
| Oriëntering | Zuidoost |
| Heeft een achterom | Ja |
| Staat | Normaal |
| Energielabel | A+ |
| Aantal parkeerplaatsen | 2 |
| Verwarmingssysteem | Vloerverwarming (gedeeltelijk) Warmtepomp |
| Ventilatie methode | Mechanische ventilatie Natuurlijke ventilatie |
| Badkamervoorzieningen Badkamer 1 | Dubbele wastafel Inloopdouche Vloerverwarming Wastafelmeubel |
| Parkeergelegenheid | Garage |
| Tuin aanwezig | Ja |
| Heeft een garage | Ja |
| Heeft ventilatie | Ja |
| Kadastrale aanduiding | Borsele AH 1174 |
| Perceeloppervlakte | 710 m² |
| Omvang | Geheel perceel |
| Eigendomsituatie | Eigen grond |